Planerar du att bygga nytt eller bygga om men känner dig handfallen av alla lagar, bestämmelser och bygglovsansökan? Eller vill du se en modell av hur det kommer se ut innan byggstart? Då kan det vara en bra idé att anlita en ingenjör. Vi har diskuterat ämnet med Mattias Bäckman på MB Konstruktion & Design i Flarken, Västerbotten.
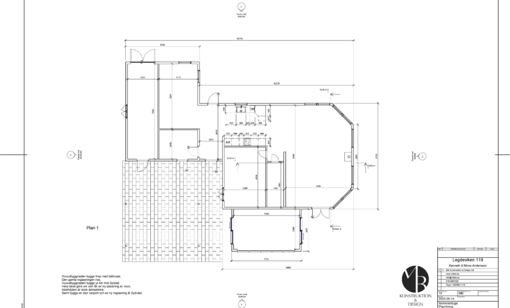
Vad är det som händer med situationsplan, fasadritning, planritning och sektionsritning? Och hur tar man sig an en bygglovsansökan? Vi kan inte hjälpa till med det, men vi kan fastslå att det finns assistans när det gäller design, ritningar, 3D-modeller, beräkningar och bygglovsdokument. Och det behöver knappt ens ske vid skrivbordet, eftersom mycket kan göras på distans i dag.
Konsultation och bygglov
Byggingenjören Mattias säger att det ofta är bygglovsprocessen som hindrar folk att gå från tanke till handling med sina byggen. Det beror på att en del kommuner kräver ett stort antal dokument som ska lämnas in med bygglovsansökan.
– Det är inte längre tillräckligt att bara skicka in en enkel ritning på ett A4-papper för att få bygglov. Det skulle kräva mycket tur i vilken kommun som handlägger ansökan, eftersom de har olika krav och bedömningar.

En stor andel av Mattias kunder anlitar honom också för att de behöver ett bollplank för sina idéer, ta reda på vad som är bärande i en konstruktion eller för att få hjälp med att skapa en detaljerad 3D-modell. För att bättre kunna se slutresultatet framför sig.
– Människor är intresserade av att se hur det slutliga resultatet kommer att se ut. Då är en modell mycket användbar. Ta till exempel ett par som bygger något tillsammans: Eftersom alla föreställer sig olika saker, hjälper en modell till så att alla involverade får en gemensam bild av saken. Man kan även lägga in virkespriser i modellen för att få en mer exakt beräkning av kostnaden. Klienter kan även begära hjälp med design, placering av fönster och var på tomten ett nytt garage bör placeras.
Distans inget hinder
Vid samtalets slut sa Mattias att det var helt möjligt att ta itu med konsultationer, ritningar och design via digitala medier som mejl och telefon. Han samarbetar även med olika arkitekter som befinner sig i Stockholm.
– Avstånd är inte något som står i vägen, så mina tjänster är tillgängliga för kunder världen över. Ansökningar skickas numera oftast digitalt, så det som krävs för att jag ska kunna hjälpa är en detaljerad beskrivning av vad som behövs, alla mått och en befintlig ritning, om sådan finns.










