Loro Piceno
Marche, Loro piceno, MacerataEUR 55 000 (ca 580 000 kr)
- Bostadstyp
- Ägarlägenhet
- Upplåtelseform
- Ägarlägenhet
- Antal rum
- 3
- Boarea
- 70 m2
- Våning
- 2 av 2
- Pris per m2
- EUR 786/m2
- Objektsnummer
- 240004357
Beskrivning
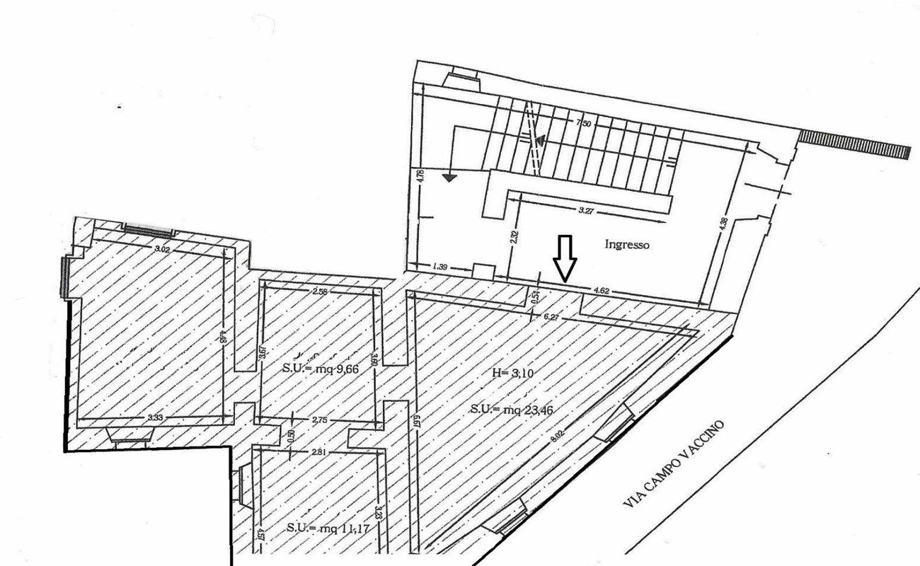
3-rumslägenhet till salu i den historiska stadskärnan i Loro Piceno i provinsen Macerata i regionen Marche. Denna lägenhet är delvis restaurerad. Lägenheten ligger precis framför stadshuset och på gångavstånd från all service och består av entréhall, matsal, kök att inreda, ett badrum och två





