Mirasal II - Los Balcones - gr
Torrevieja, Comunitat valenciana, El baix segura / la vega bajaEUR 259 000 (ca 2 750 000 kr)
- Bostadstyp
- Ägarlägenhet
- Upplåtelseform
- Ägarlägenhet
- Antal rum
- 3
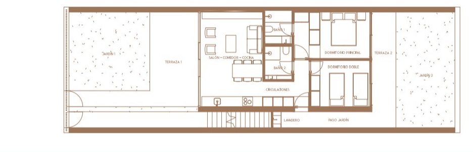
- Biarea
- 81.8 m2
- Våning
- 0 av 1
- Tomtarea
- 53 m2
- Byggår
- 2026
- Objektsnummer
- 260009429
Bekvämligheter
Beskrivning
Varmt välkomna till denna spektakulära nyproduktion vid namn Mirasal II belägen i vackra Los Balcones! Här byggs 52 moderna lägenheter med 2-3 sovrum, 2 badrum och fantastiska utomhusytor. Välj mellan markplanslägenheter med två underbara terrasser och trädgård eller takvåningar med balkong och




