Brunnehagen 56
Tuve, GÖTEBORG, Göteborg, Västra Götaland- Bostadstyp
- Bostadsrätt
- Upplåtelseform
- Bostadsrätt
- Antal rum
- 2
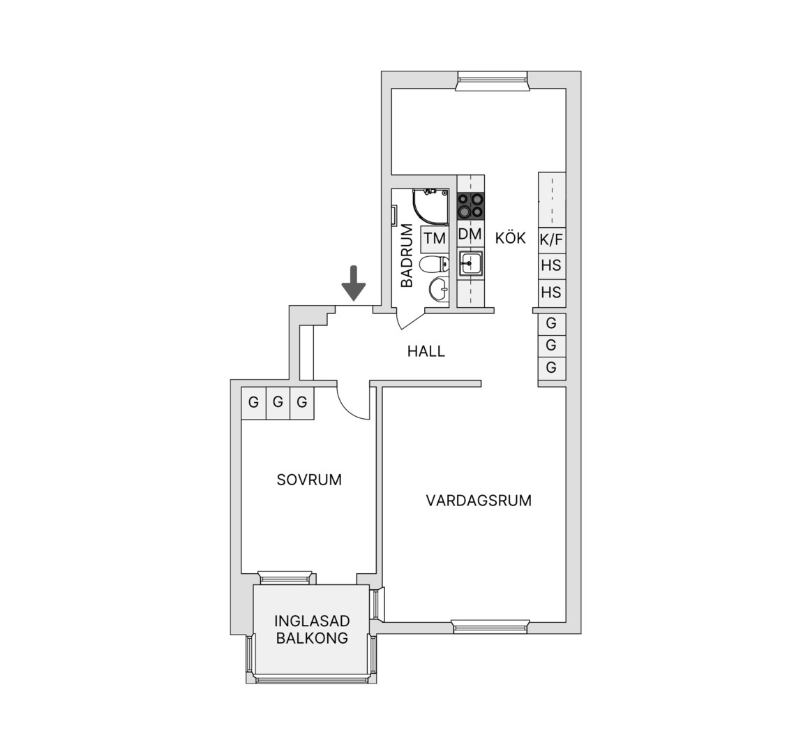
- Boarea
- 61.5 m2
- Våning
- 1 av 3
- Byggår
- 1972
- Avgift
- 4 148 kr/mån
- Energiklass
- E
- Objektsnummer
- 256104172
Bekvämligheter
Beskrivning
Snart kan vi presentera denna ljusa och charmiga tvåa med attraktivt gavelläge på första våningen. Här bor ni i en trivsam bostad med genomtänkt planlösning, enhetligt ljust golv och stora fönster som släpper in mycket naturligt ljus. Köket går i helvitt med vita över- och underskåp samt vitt
Loading ads...






