Järnåkravägen 9A
Lund, Skåne2 550 000 kr 2 595 000 kr
- Bostadstyp
- Bostadsrätt
- Upplåtelseform
- Bostadsrätt
- Antal rum
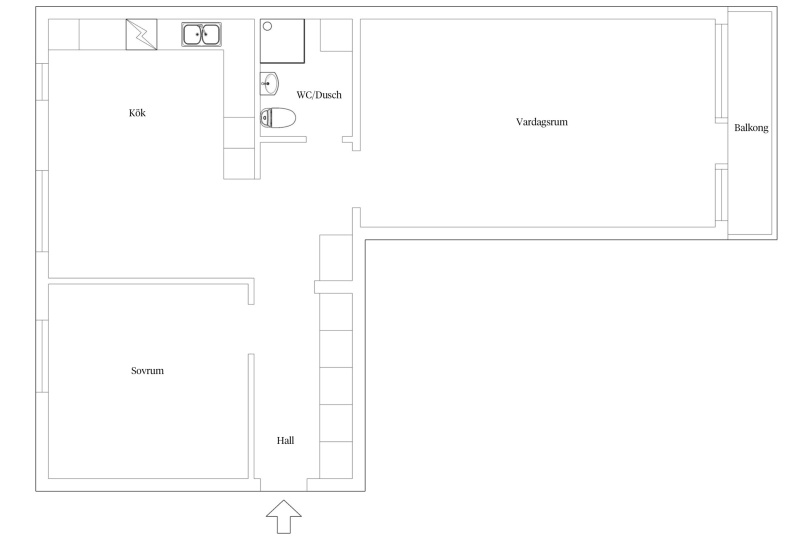
- 2
- Boarea
- 61 m2
- Våning
- 3 av 4
- Byggår
- 1956
- Avgift
- 2 859 kr/mån
- Pris per m2
- 41 803 kr/m2
- Energiklass
- E
- Objektsnummer
- 266017071
Bekvämligheter
Beskrivning
Välkommen till Järnåkravägen 9A, våning 3, en mycket trivsam och välplanerad tvårummare om 61 kvm med soligt sydläge och balkong. Här bor du bekvämt med låg månadsavgift, genomtänkt planlösning och fina materialval som ger bostaden både karaktär och modern känsla. Redan när du kliver in möts du
Gå på visningBokad visning. Anmäl dig på Bjurfors.se.
När:
Kl:





