Kung Oskars Väg 31
Sockerbruket, Lund, Skåne3 295 000 kr
- Bostadstyp
- Bostadsrätt
- Upplåtelseform
- Bostadsrätt
- Antal rum
- 2
- Boarea
- 77 m2
- Våning
- 1
- Byggår
- 2012
- Avgift
- 4 444 kr/mån
- Pris per m2
- 42 792 kr/m2
- Energiklass
- D
- Objektsnummer
- 256111093
Bekvämligheter
Beskrivning
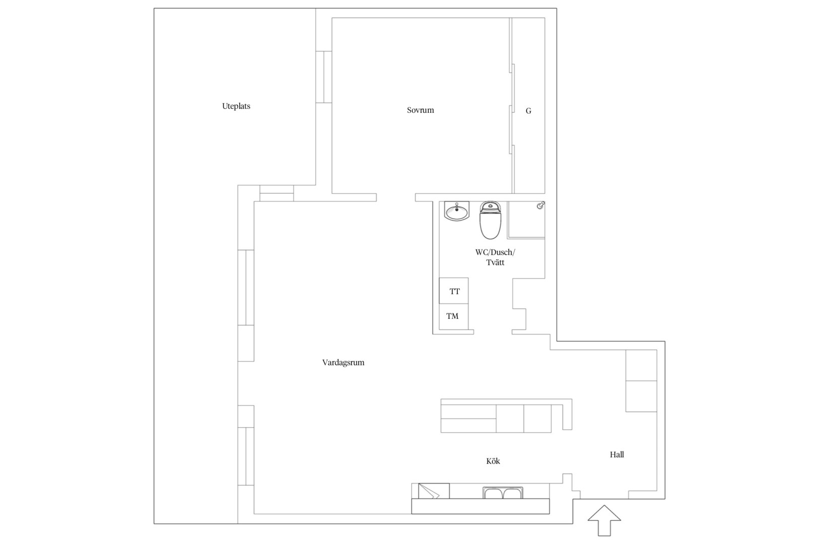
När du kliver in i bostaden möts du av den generösa och välkomnande hallen. Här finns gott om plats för avhängning, inte minst tack vare de rymliga garderoberna som elegant ramar in entrén. Från hallen öppnar sig det moderna och välutrustade köket. Här återfinns diskmaskin, induktionshäll, ugn
Pågående budgivning
Tryck för att se budgivning:Visa budgivning







