Fredsgatan 36B
Tibro, Västra Götaland- Bostadstyp
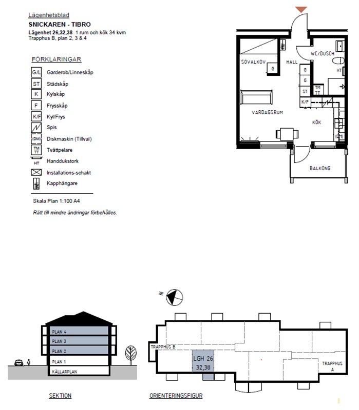
- Lägenhet
- Antal rum
- 1
- Boarea
- 34 m2
- Månadshyra
- 5 105 kr/mån
- Objektsnummer
- 267039738
Beskrivning
Hyresrätt på Fredsgatan 36B i Tibro med 1 rum (34 m²). Besök fastighetsägarens sida för komplett beskrivning.


