1/4
UthyresUthyres

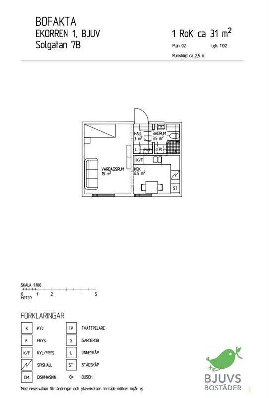
Solgatan 7 B

Bjuv, Skåne
Bostadstyp
Lägenhet
Antal rum
1
Boarea
31 m2
Månadshyra
6 009 kr/mån
Objektsnummer
257‌119220

Beskrivning

Hyresrätt på Solgatan 7 B i BJUV med 1 rum (31 m²). Besök fastighetsägarens sida för komplett beskrivning.

Räkna på ditt nya boende

AnnonsSe månadskostnaden för Solgatan 7 B och ansök om lånelöfte enkelt online:
Placeholder 1Placeholder 2
Loading ads...

Karta