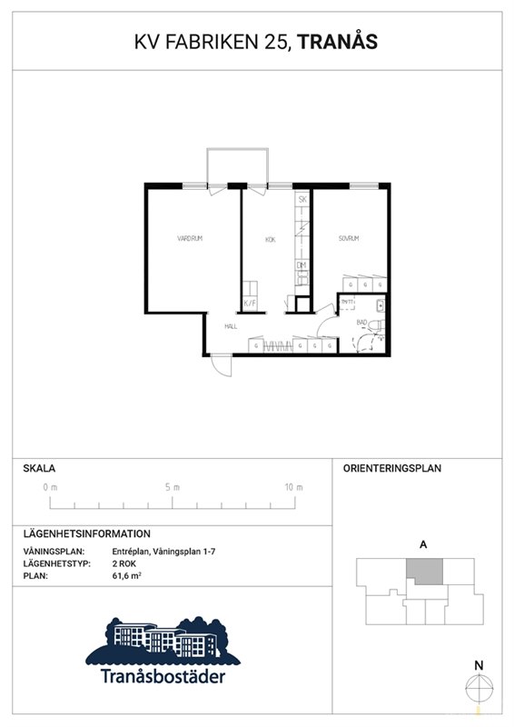
Fabriksgatan 3
TRANÅS, Tranås, Jönköping- Bostadstyp
- Lägenhet
- Antal rum
- 2
- Boarea
- 62 m2
- Månadshyra
- 6 845 kr/mån
- Objektsnummer
- 267016517
Beskrivning
Hyresrätt på Fabriksgatan 3 i TRANÅS med 2 rum (62 m²). Besök fastighetsägarens sida för komplett beskrivning.

