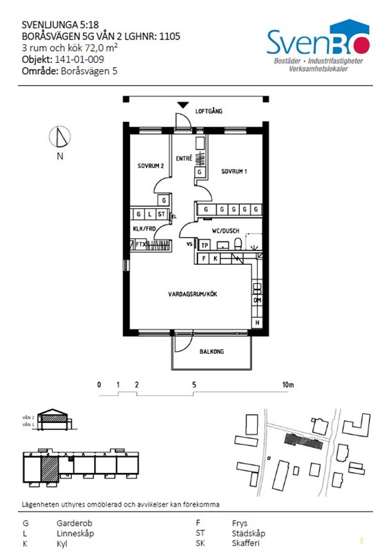
Boråsvägen 5 G
Svenljunga, Västra Götaland- Bostadstyp
- Lägenhet
- Antal rum
- 3
- Boarea
- 72 m2
- Månadshyra
- 10 683 kr/mån
- Objektsnummer
- 267012194
Beskrivning
Hyresrätt på Boråsvägen 5 G i Svenljunga med 3 rum (72 m²). Besök fastighetsägarens sida för komplett beskrivning.

